طريقه عمل ميزانيه شبكيه لقطعه ارض



الميزانية الشبكيه ما هي وكيفية تنفيذها وما فائدتها وبصور حيه من الموقع

الميزانية الشبكيه ما هي وكيفية تنفيذها وما فائدتها وبصور حيه من الموقع

الميزانية الشبكية Grid Levelling Youtube

الميزانية الشبكية Grid Levelling Youtube

شرح عمل الميزانية الشبكية بالتفصيل

شرح عمل الميزانية الشبكية بالتفصيل

ازاى تعمل ميزانيه شبكيه Youtube

ازاى تعمل ميزانيه شبكيه Youtube

شرح عمل الميزانية الشبكية بالتفصيل

شرح عمل الميزانية الشبكية بالتفصيل

الميزانية الشبكيه ما هي وكيفية تنفيذها وما فائدتها وبصور حيه من الموقع

الميزانية الشبكيه ما هي وكيفية تنفيذها وما فائدتها وبصور حيه من الموقع

الميزانية الشبكيه ما هي وكيفية تنفيذها وما فائدتها وبصور حيه من الموقع

كيفيه عمل ميزانيه شبكيه ملتقى مهندسي المساحه فيسبوك

كيفيه عمل ميزانيه شبكيه ملتقى مهندسي المساحه فيسبوك

الميزانية الشبكيه ما هي وكيفية تنفيذها وما فائدتها وبصور حيه من الموقع

الميزانية الشبكيه ما هي وكيفية تنفيذها وما فائدتها وبصور حيه من الموقع

المساحة ميزان القامة شرح عمل الميزانية الشبكية والطولية

المساحة ميزان القامة شرح عمل الميزانية الشبكية والطولية

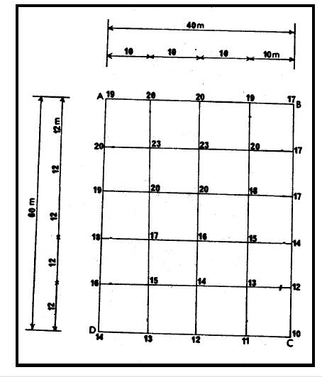
سؤال في المساحه حساب الكميات بالميزان ١ يتم عمل ميزانيه شبكيه للمشروع او قطعه الأرض و ايجاد مناسيب سطح الارض لكل نقطه من نقاط الميزانيه ٢ تقسيم الشبكيه إلى قطاعات Sections

سؤال في المساحه حساب الكميات بالميزان ١ يتم عمل ميزانيه شبكيه للمشروع او قطعه الأرض و ايجاد مناسيب سطح الارض لكل نقطه من نقاط الميزانيه ٢ تقسيم الشبكيه إلى قطاعات Sections

كيفية عمل شبكية لقطعة أرض وحصر الكميات الاجمالية لها Grid Grading Youtube

كيفية عمل شبكية لقطعة أرض وحصر الكميات الاجمالية لها Grid Grading Youtube

الميزانية الشبكيه ما هي وكيفية تنفيذها وما فائدتها وبصور حيه من الموقع

الميزانية الشبكيه ما هي وكيفية تنفيذها وما فائدتها وبصور حيه من الموقع

الميزانية الشبكية كيفية عملها وماهو جهاز الميزان وكيف يعمل بـ عدسة معمارى

الميزانية الشبكية كيفية عملها وماهو جهاز الميزان وكيف يعمل بـ عدسة معمارى

مثال لتحقيق ميزانية باستخدام منسوب سطح الميزان د مختار الحسانين Youtube

مثال لتحقيق ميزانية باستخدام منسوب سطح الميزان د مختار الحسانين Youtube

حساب كميات الحفر والردم من الميزانية الشبكية

حساب كميات الحفر والردم من الميزانية الشبكية

شرح عمل الميزانية الشبكية بالتفصيل

شرح عمل الميزانية الشبكية بالتفصيل

كيفية عمل شبكية لقطعة أرض Mp3

كيفية عمل شبكية لقطعة أرض Mp3

الميزانية الشبكية Youtube

الميزانية الشبكية Youtube

الميزانيه الشبكية وحساب حجوم الحفر والردم

الميزانيه الشبكية وحساب حجوم الحفر والردم

شرح عمل الميزانية الشبكية بالتفصيل

شرح عمل الميزانية الشبكية بالتفصيل

المساحة ميزان القامة شرح عمل الميزانية الشبكية والطولية

المساحة ميزان القامة شرح عمل الميزانية الشبكية والطولية

طريقة عمل الميزانية مجلة المهندس

طريقة عمل الميزانية مجلة المهندس

الميزانية الشبكيه ما هي وكيفية تنفيذها وما فائدتها وبصور حيه من الموقع

الميزانية الشبكيه ما هي وكيفية تنفيذها وما فائدتها وبصور حيه من الموقع

حساب كميات الحفر والردم من الميزانية الشبكية

حساب كميات الحفر والردم من الميزانية الشبكية

Source : pinterest.com